Retablo y comedor

Se realizó un taller de Miniarquitectos con alumnos de 3ero a 5to grado de primaria con los cuales se reconoció la principal problemática del colegio, la falta de un espacio con las condiciones adecuadas para la toma de alimentos, ya que lo venían haciendo al aire libre sobre mobiliario en desuso (pupitres y bancas viejas o rotas). Identificado el problema se propuso a partir de sus ideas plasmadas en dibujos la elaboración de mobiliario lúdico de bancos y mesas fáciles de ensamblar, livianas, cómodas y “garabateables”. Así mismo se reusó un almacén de libros que por su mala ubicación no era usada por los niños, reciclando su estructura y convirtiéndola en una “retablo” que además de contener libros, al abrirse brindara cojines, juegos y fomentara la lectura al aire libre. La construcción del mobiliario se realizó junto a profesores, padres de familia y varios niños en 6 jornadas de trabajo.

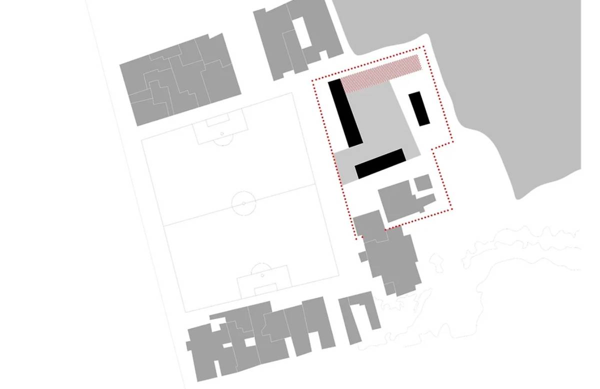
IIEE: Juan Velasco Alvarad
Lugar: Centro Poblado La Garita, Chincha, Ica
Año: 2015
Equipo aliado: DARS - PUCP / FAU - PUCP